+

CASA DI CAMPAGNA COMPLETAMENTE RISTRUTTURATA

    Rif. CA237
    Contratto Vendita
    Comune Soliera
    Prezzo 320.000 €
    Anno di costruzione 1930
5 camere
3 bagni
500 m2

CA237 PER INFO E VISITE CONTATTARE FLAVIA 3801713300
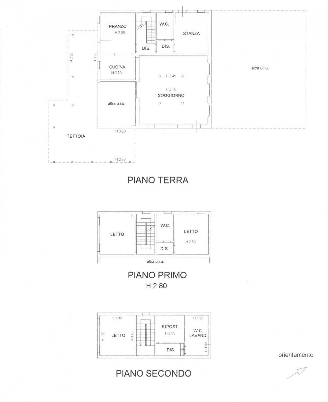
Proponiamo in vendita, nelle campagne solieresi, bellissima casa completamente ristrutturata nel 2001 con ampio giardino molto curato e in parte pavimentato con ampia tettoia e posti auto. La casa si sviluppa su tre livelli ed è composta da: P.T. con Ingresso su sala da pranzo con camino a legna, cucina a vista, ampio salone, bagno, disimpegno e stanza che può essere adibita a studio o camera matrimoniale; P.1 con due camere matrimoniali, disimpegno e bagno; P.2° con due camere da letto e bagno molto grande anche ad uso lavanderia. Completano l'immobile i seguenti accessori: porta blindata, zanzariere, caldaia a condensazione, caldaia a legna, antifurto, 3 split di aria condizionata, infissi in PVC. Completa la proprietà un locale ad uso cantina e un fienile al grezzo per poter creare un ulteriore spazio abitativo. Posizione tranquilla in strada chiusa con cancello in ferro battuto. DA VEDERE!!
Per chi fosse interessato si potrebbe acquistare a parte 3000 mq di terreno coltivato a vigneto adiacente all'abitazione ad un prezzo di € 20.000.

Planimetrie

Ambienti

Soggiorno
Soggiorno angolo cottura
Ripostigli 1
Mansarda
Soffitta
Taverna
Giardino
Cantina
Posto auto 3
Lavanderia
Porticato
Sottotetto

Livelli & comfort

Livelli Piano terra , Primo piano , Ultimo piano
Piano numero 2
Aria condizionata
Caldaia a condensazione
Camino
Riscaldamento autonomo
Accesso disabili
Ingresso indipendente
Numero accessi carrai 1
Numero portoni 1
Porta blindata
Predisposizione allarme
Vasca
Zanzariere

Informazioni Extra

Impianto elettrico A norma

classe energetica

2
2
F
260.05
n/d

Mappa

Compila il form