+

TRILOCALE IN PALAZZINA RISTRUTTURATA

    Rif. MI110
    Contratto Vendita
    Comune Finale Emilia
    Zona Finale Emilia
    Prezzo 79.000 €
    Spese condominiali 30 €
    Anno di costruzione 1976
2 camere
1 bagni
84 m2

MI110 - PER INFO E VISITE CONTATTARE FEDERICO 3534379161
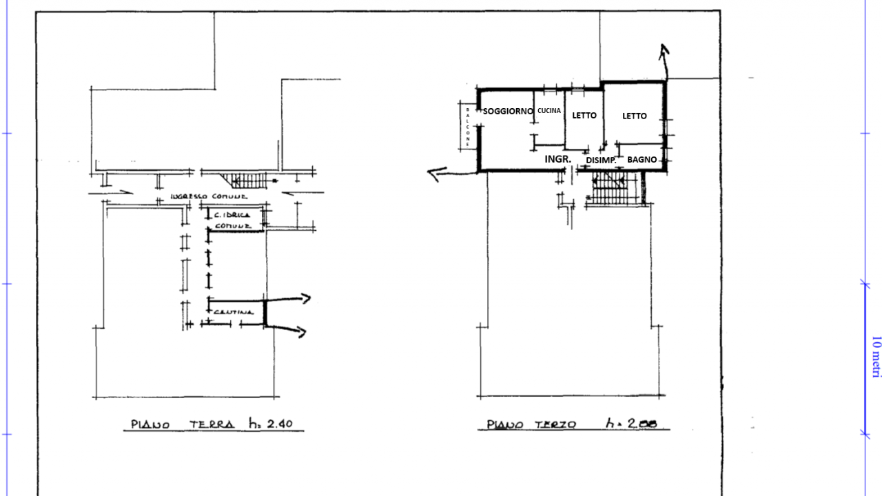
Proponiamo in vendita a Finale Emilia, in zona residenziale tranquilla poco distante dal centro e comoda ai principali servizi, interessante trilocale in palazzina anni '70 ristrutturata. L'immobile si sviluppa al terzo e ultimo piano ed è così composto: ingresso su corridoio, soggiorno con balcone, cucina semi abitabile, disimpegno notte, camera singola/studio, camera matrimoniale e bagno. Completano la proprietà al P.T. cantina e autorimessa con accesso diretto all'interno del condominio. L'appartamento è dotato di cappotto, infissi in pvc con doppi vetri e zanzariere. Spese condominiali contenute. Disponiamo delle chiavi per visite immediate. PRONTA CONSEGNA!

Planimetrie

Ambienti

Soggiorno
Cucina
Ripostigli 1
Poggioli/balconi 1
Giardino condominiale
Cantina
Garage 1

Livelli & comfort

Livelli Ultimo piano
Piano numero 3
Pannelli solari
Riscaldamento autonomo
Porta blindata
Zanzariere

Informazioni Extra

Connettività FIBRA
Impianto elettrico A norma

classe energetica

2
2
D
0.00
n/d

Mappa

Compila il form