+

VILLETTA A SCHIERA NUOVA

    Rif. CA234
    Contratto Vendita
    Comune Carpi
    Zona Cortile
    Prezzo 390.000 €
    Anno di costruzione 2025
3 camere
3 bagni
199 m2

CA234 - PER INFO E VISITE SARA 3456995346.
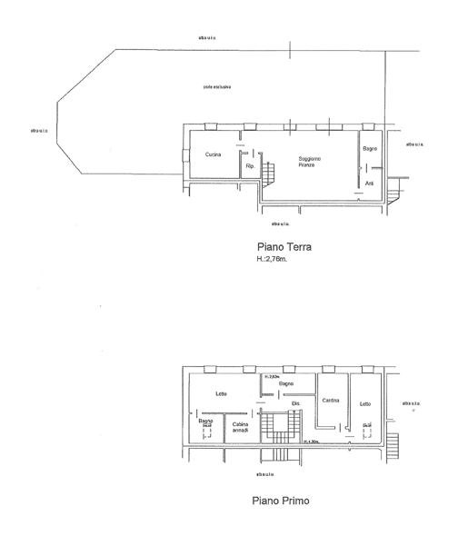
Proponiamo in vendita nella campagna carpigiana all'interno di un borgo moderno, ultime 2 villette a schiera di nuova costruzione e PRONTA CONSEGNA, l'abitazione è così composta: PT ingresso su ampio soggiorno di circa 40 mq, cucina abitabile, bagno con zona lavanderia; P1 tre camere da letto di cui una con bagno e cabina armadi, disimpegno notte e bagno. Struttura dotata di cappotto, riscaldamento a pavimento con pompe di calore, impianto fotovoltaico di 3 kw, addolcitore, infissi in pvc e classe energetica A4, completa l'immobile un ampio giardino privato su due lati di circa 164 mq. Possibilità di acquistare posti auto a parte. DA VEDERE!!

Planimetrie

Ambienti

Soggiorno
Cucina
Ripostigli 1
Giardino

Livelli & comfort

Livelli Piano terra , Primo piano
Piano numero 1
Pannelli fotovoltaici
Predisposizione aria condizionata
Riscaldamento autonomo
Riscaldamento a pavimento
Allarme
Ingresso indipendente
Numero accessi carrai 1
Numero portoni 1
Porta blindata
Zanzariere

Informazioni Extra

Connettività FIBRA
Impianto elettrico A norma

classe energetica

2
2
A4
0.00
n/d

Mappa

Compila il form